Stan 23

Dvosoban stan

Vojvode Prijezde 8-10

Kvadratura stana

56.79 m2

Broj soba

2

Sprat

2

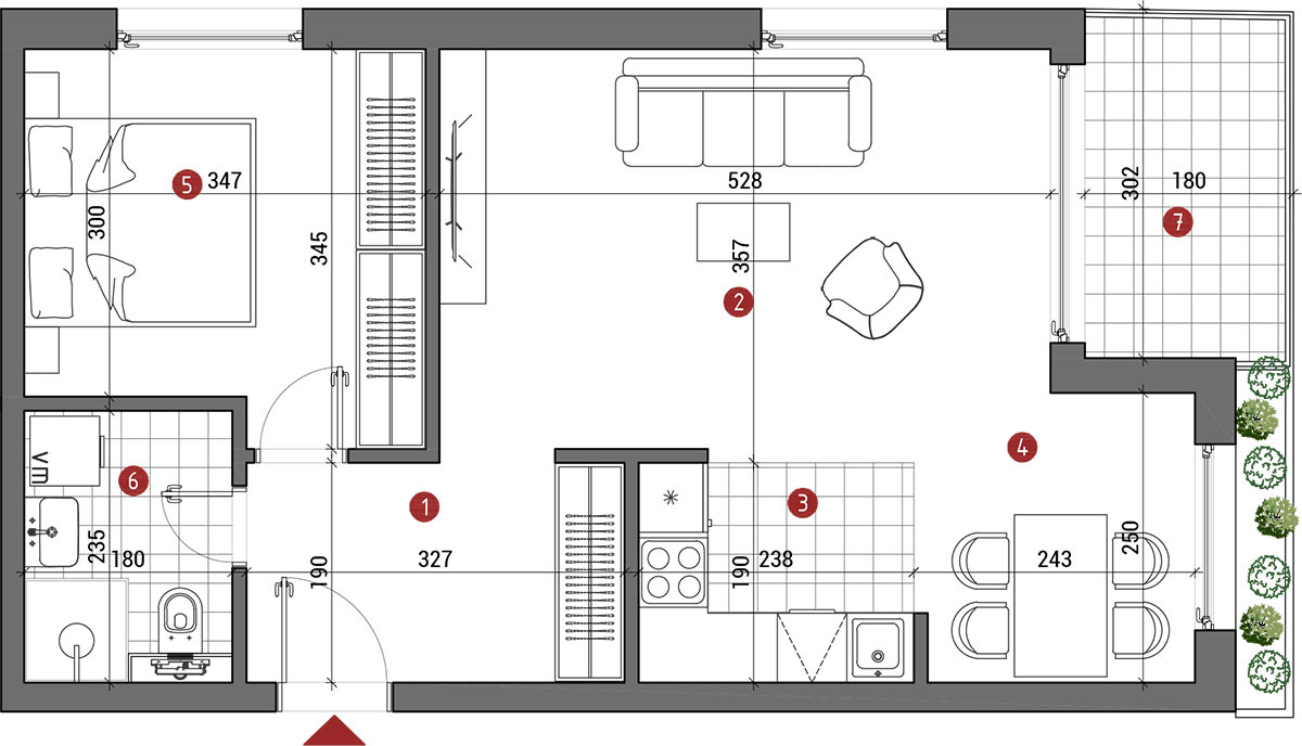
Osnova stana

Prostorije

01. Hodnik
6.621 m2
02. Dnevna soba
18.00 m2
03. Kuhinja
4.52 m2
04. Trpezarija
6.01 m2
05. Spavaća soba
11.12 m2
06. kupatilo
4.23 m2
07. Terasa
6.70 m2
Ukupno stan
56.79 m2

Orijentacija stana u prostoru

3D prikaz stana